Москва, пр-кт Андропова,
11
м. Технопарк
10 мин. пешком (1 120 м)
ID 102037
м. Технопарк
10 мин. пешком (1 120 м)
Без комиссии
| Платежи | м2/ в год | Итого в месяц | Итого в год |
| Арендная ставка | 35 000 руб | 510 417 руб | 6 125 000 руб |
| Эксплуатационные расходы | включены | включены | включены |
| Коммунальные услуги | |||
| Итого | 510 417 руб | 6 125 000 руб |
1
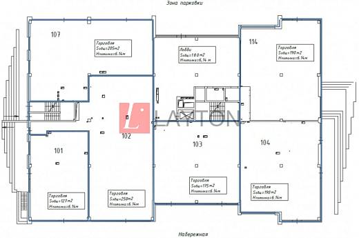
планировка
6 м
ежемесячно авансом
1 месяц
Характеристики помещения
Этаж:
1
Готовность:
Планировка:
планировка
Высота потолков:
6 м
Коммунальные платежи:
Условия оплаты:
ежемесячно авансом
Депозит:
1 месяц




