Москва, ул Малая Дмитровка,
20
м. Маяковская
8 мин. пешком (680 м)
ID 112347
м. Маяковская
8 мин. пешком (680 м)
м. Пушкинская
9 мин. пешком (730 м)
Без комиссии
| Платежи | м2/ в год | Итого в месяц | Итого в год |
| Арендная ставка | 45 082 руб | 5 334 703 руб | 64 016 440 руб |
| Эксплуатационные расходы | - | не включены | не включены |
| Коммунальные услуги | |||
| Итого | 5 334 703 руб | 64 016 440 руб |
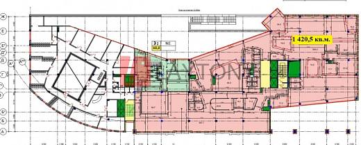
2
планировка
ежемесячно авансом
3 месяца
Характеристики помещения
Этаж:
2
Готовность:
Планировка:
планировка
Коммунальные платежи:
Условия оплаты:
ежемесячно авансом
Депозит:
3 месяца



